1276 NORTH HIGH STREET
Columbus, OH
<< Back to Project List
 
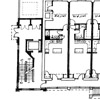
Originally constructed in 1914 as the York Temple, this building is attributed to architect Frank Packard from the prominent firm of Yost and Packard. Rogers Krajnak Architects provided a feasibility study to renovate the building into twenty-five residential condominiums. Our team evaluated the existing structure, mechanical, plumbing and electrical systems and prepared a code analysis, conceptual architectural floor plans, elevations, building sections, site plans and cost estimates for renovation and additions.