| 
         
      
        
        
          
            
    
| 
                  
                  
 | 
    
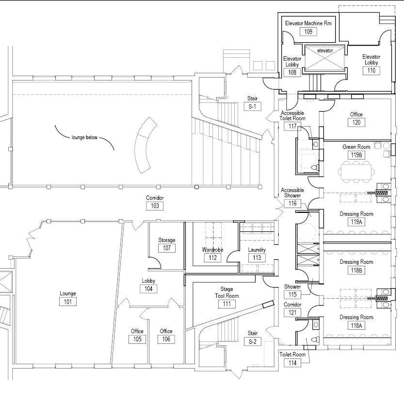
    Rogers Krajnak Architects was commissioned to develop a Conceptual Design for Matesich Theatre on the campus of Ohio Dominican University, a liberal-arts institution in Columbus, Ohio. The renovation of the theatre includes upgrades to the Audience Chamber to provide additional seating, audio/visual upgrades, sound isolation improvements, an expanded fly-space, as well as plaster and woodwork restoration. In addition to the theatre, the first floor will be renovated to include new dressing rooms, green rooms, offices, restrooms, and showers, with direct access to the stage above. A new two-story addition is also proposed on the north side of the theatre that accommodates a loading dock, elevator, and elevator lobbies to allow for performers and patrons to access the stage and various other floor levels within Matesich Theatre.
    
   | 
 
 
    
               | 
           
         
        
        
         | 
       
     
     |