PRIVATE RESIDENCE
Columbus, OH
<< Back to Project List
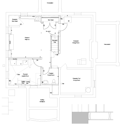
RKA was commissioned to transform an unfinished basement into a refined and comfortable living and play space, as well as a New Laundry Room, Powder Room, and Wine Closet with new finishes and lighting. The renovated stair provides an openness to the adjacent living space and features balustrades that match the first- floor stair balustrades. The custom built-in bar, entertainment center, and under-stair shelving provide storage areas for various activities accommodate in the space. Several historic wood doors that were salvaged from previous projects at this residence were restored and installed in the renovated basement.