PRIVATE RESIDENCE
Columbus, OH
<< Back to Project List

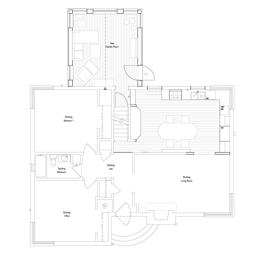
This 1950s home had a small, cramped Kitchen with no real space and limited views to the rear yard and garden. RKA created interior renovations to the Kitchen and Dining spaces, and a new addition to the north (rear) of the house. An existing wall between the former Kitchen and Dining spaces was removed, combining the Kitchen and Dining spaces to serve both functions more comfortable. The New Kitchen includes custom cabinets, new appliances, larger windows, and ample space for gathering. The New Garden Room addition at the rear of the house provides a comfortable, cozy space to enjoy the view of the garden beyond.