PRIVATE RESIDENCE
Bexley, OH
<< Back to Project List
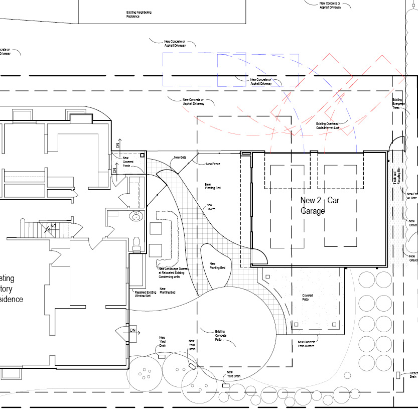
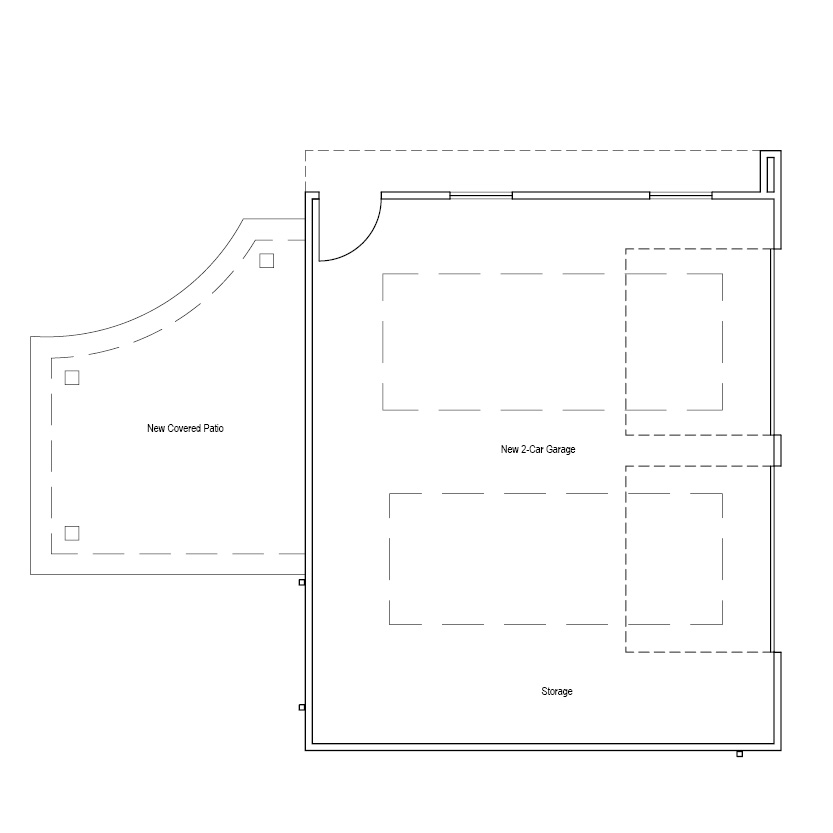
The Client's existing attached garage, with a shared driveway, was located facing the rear of the property. With this configuration, the Clients could not maneuver their vehicles into the garage. RKA was commissioned to develop a design that replaced the garage with a new detached Garage that allowed easy access for vehicles, and expanded storage space. The new detached Garage is more in keeping with the 1920's Central Bexley neighborhood context. Architecturally, the new garage takes its cues from the beautiful French Eclectic style home. The space between the garage and house, and the space behind the new Garage, were re-envisioned to be comfortable outdoor living space. A new Covered Patio, engaged with the rear of the new Garage, is the highlight of the new outdoor living space, with a pergola-like timber structure. A new Rear Porch, and renovations to the rear of the home where the previously attached garage was connected, were also part of the project scope.